LIZ NUNES 561.351.4529 | CHIP ARMSTRONG 561.371.3787
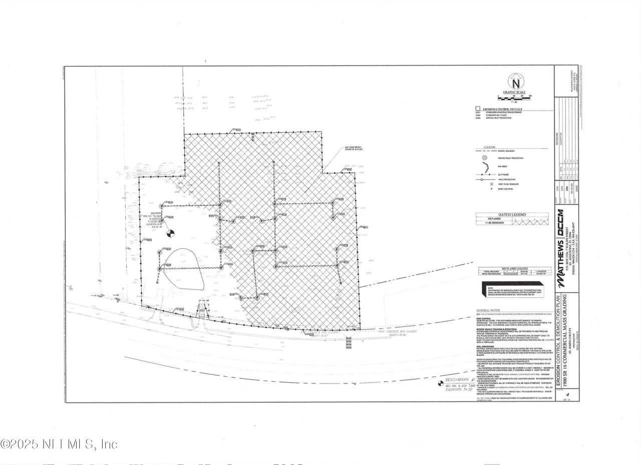
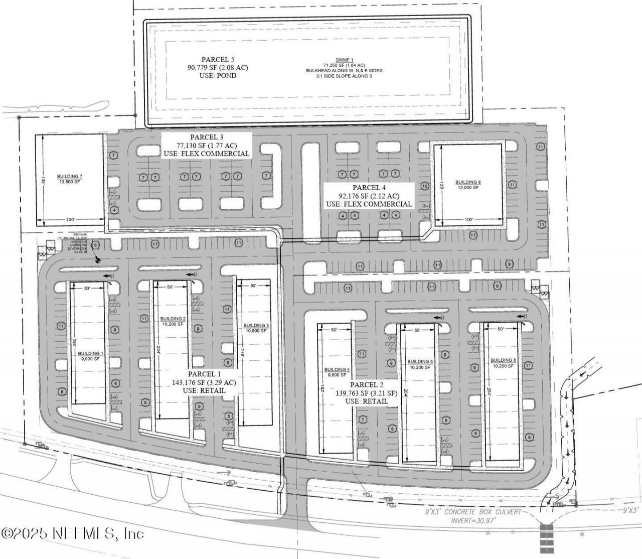
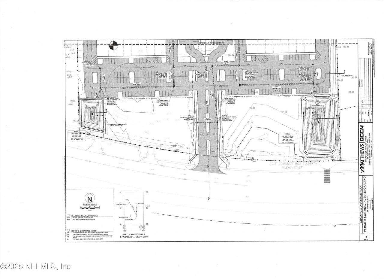
412 Feet of Frontage per each 3.5 acre parcel or 823.5 Frontage for both (per tax roll). This is directly on State Road 16 which is the Main Road in and out of Old St. Augustine, Fl. . On last review there were only two other larger parcels available in the area. One had 200 ft and the other 225 feet of Frontage on 16. Please note that the 1900 and the 1910 (Listing # 2114353) SR 16 listings are the same parcel of land with different approaches as to how it is marketed and developed. To be clear...412 Feet of Frontage per each 3.5 acre parcel or 823.5 Frontage for both (per tax roll). This is directly on State Road 16 which is the Main Road in and out of Old St. Augustine, Fl. . On last review there were only two other larger parcels available in the area. One had 200 ft and the other 225 feet of Frontage on 16. Please note that the 1900 and the 1910 (Listing # 2114353) SR 16 listings are the same parcel of land with different approaches as to how it is marketed and developed. To be clear there are two engineer generated site plans in the works for this site depending on the developers vision and needs.Virtually all of SR 16 has become a High Demand/High Development Area. The vast majority of sites available two years ago are now in some phase of development. 3 of the 4 new housing projects in the area have recently come directly to 16 (please see pics regarding these developments). The upscale Tapestry located just to the West of this site finished construction recently and is currently leasing. Another is nearing completion in the 1100 block of SR 16 while another in the 800 to 900 block of 16 finished clearing and plans to start construction in early Q1 2026. Two of the three new housing developments are for 300+ units. The fourth large housing development (Terrassa) is just North of 16 and E. of I-95 where the high end outlet mall used to be. Terrassa is also planned for over 300 luxury apts. This high growth area is in need of commercial retail and services to satisfy the Mushrooming demand. Due to the exposure this appears to be one of the very few larger sites remaining on SR 16 that would qualify as Prime. Other non-residential projects being built on 16 include a dental bldg w a coffee shop and an emergency care bldg in the 800 block. An exotic car dealership (Sunday Drive) is coming soon to the 2100 block of 16. Lastly Atlantic Marine is soon to build a new boat showroom in the 2200 block of SR 16.This 12 acre site is in the process of being planned and permitted for potential entitlements up to 100,000 sqft.In this 1900 SR 16 site plan there are two smaller outparcels of approx 1.2 acres in front ideal for QSR's (quick serve restaurants like Five Guys, Cava, BurgerFi or Panda Express, Drive-Thru coffee & Beverage Shops like Dutch Brothers or Ellianos, Banks-Credit Unions, Urgent Care/Medical Office/Vision Care i.e. America's Best Contacts, or Dental like Heartland or Deca Dental. Also needed is a Pharmacy w Drive-Thru. Specialty Retail like Mattress Firm, Auto Zone, O'Reilly's or Wireless Providers. Car washes like Mr. Clean, Tommy's Tidal Wave or Mister Car Wash. Also a good fit for auto accessory shops like Tint World, Black Optix, Line-X or Color Glo.With this 1900 SR 16 site plan, in back of the outparcels there will be two sets of strip stores on either side of the driveway. Both with drive thru end caps. These strips could offer the obvious needed services such as hair and nail salon, barber, dry cleaner, beauty supply, mini bank branches w atm machines, small sit down restaurants, pet care and grooming etc.In back of the strip stores there is a space that can accommodate a large structure with a footprint of 15,000 sqft and can go up to 5 stories. A structure like that would be ideal for Commercial Flex space, a hotel, or potentially a larger scale bed and breakfast built with an Old St. Augustine motif. A few other options include: Tech Schools, College Satellite facilities, Medical/profession office bldg, Top
View MoreCourtesy of
Agency Name: FLORIDA HOMES REALTY & MTG LLC
Agent Name: MIREY MUALIN
Presented by
Agent Name: The Legacy Group
Agent Phone: 561.282.5207
Agency Title: The Keyes Company
Request Info
Send an email with a link to
1900 State Road 16, Saint Augustine, FL 32084.
Email 1900 State Road 16, Saint Augustine, FL 32084
Thank you for your inquiry! As a thank you, we have a Special Mortgage Offer for You.
We would like to provide you a free, no-obligation, home loan pre-approval review.